EL ANZUELO HOTEL
study for a new boutique hotel
AGISTRI ISLAND, SARONIC GULF
Plot Surface: 1.590,00 sq.m.
Building Surface: 235,00 sq.m.
Study: 2017
Type: Boutique Hotel
The design of a small boutique hotel, by the sea, at an emerging holiday destination, on Agistri island, nearby Athens, responds to the contemporary needs for comfort, luxury, elegance and experience living during vacation.
An endless dialogue between framed and limitless views, shadow and sunlight, gravity and lightness.
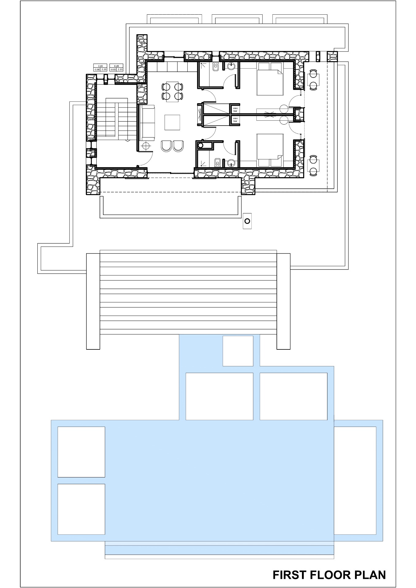
The ground floor is divided into two levels, with the rear side receiving the hotel rooms, as the front unified space, with the hotel reception, bar and living space are in an open plan layout. The space opens out through large floor-to-ceiling sliding glass panels to the semi-outdoors lounge area, bellow the oversized concrete beams, filtering sunlight, creating an uninterrupted continuation between interior and exterior space, in front of the infinity pool.
The choice of mineral materials and natural elements and through their structural abilities gives prominence to the creation of various spaces of accommodation and hospitality. The use of stone is dominating. Raw stones and chiseled stones are blended and composed to determine indoor and outdoor areas, constructive sceneries in human scale. The water element, an infinite pool with floating isles, is the key element for anchoring the ensemble, but in the same time is the venue of great escapism.

